แบบบ้านโมเดิร์นหรู รหัสแบบ CC-H2-82001.12 แบบบ้านสองชั้น Modern Luxury 5 ห้องนอน 6 ห้องน้ำ ที่จอดรถ 4 คัน สระว่ายน้ำ 63 ตร.ม.
ที่ดินสร้างแบบนี้ 300 ตารางวา ที่ดินกว้าง 40 ลึก 30 เมตร ลูกค้ามีที่ดินใกล้เคียง 300 ตารางวา
| รหัสแบบ | : CC-H2-82001.12 |
| พื้นที่ใช้สอย | : 820 ตร.ม. |
| ประเภท | : แบบบ้านสองชั้น |
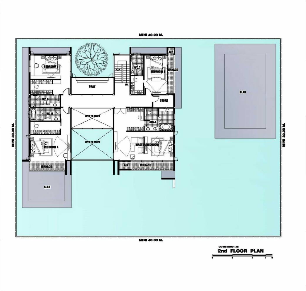
| ห้องนอน | : 5 ห้อง |
| ห้องน้ำ | : 6 ห้อง |
| ที่จอดรถ | : 4 คัน |
| ขนาดที่ดิน | : 300 ตร.ว. |
| ที่ดินกว้าง | : 40 เมตร |
| ที่ดินลึก | : 30 เมตร |
| สระว่ายน้ำ | : 63 ตร.ม. |
| ราคาแบบบ้าน Modern Luxury | : |
| แบบบ้านสำเร็จรูป | : - |
| ปรับแบบ ออกแบบใหม่ | : - |


ฟังก์ชั่นใช้สอย แปลนบ้านชั้น 1
ฟังก์ชั่นใช้สอย แปลนบ้านชั้น 2
บริษัทรับออกแบบบ้าน เขียนแบบ ออกแบบตกแต่งภายใน
CASA-CONCEPT1 by บริษัท บางกอก แบบแปลน จำกัด
57 ซอยรามอินทรา 65 แยก 4 ท่าแร้ง บางเขน กทม. 10230
หน้าหลัก | แบบบ้าน | สเปคแบบบ้าน | บทความ | รูปแบบบริการ | ติดต่อเรา | เกี่ยวกับเรา
บริการออกแบบ เขียนแบบ ออกแบบภายใน บ้านโมเดิร์นหรู แบบบ้านโมเดิร์น Casa Concept Modern luxury
ยินดีให้คำปรึกษาทุกวัน รับออกแบบบ้าน 02-509-2324 หรือ Line : gimyong